郑州融创城

房产首页 行者看房 房产资讯 投诉维权 开盘预报 热点楼盘
当前位置:
  • 周边楼盘
  • 最新楼盘
郑州融创城 (开发商:河南中珂置业有限公司)
037189986666
项目地址:
[
管城回族区
]
中州大道紫辰路交会处南500米
当前价格: 高层即将加推价格待定 洋房18000元/m²[房贷计算器]
参考均价: 高层即将加推价格待定 洋房18000元/m²
项目特色: 绿色住宅 高绿化率 南北通透
交房时间: 2022年12月31日 开盘时间: 2019-12-12
物业类别:
普通住宅
交付标准: 精装
得房率: 待定 容积率: 2.99
建筑面积: 约15万㎡ 占地面积: 1086亩
绿化率: 30% 总户数: 796户
销售许可证: 【2020】郑房预售字(4883)号
【2020】郑房预售字(4884)号
物业费: 3.20元/㎡/月
车位数: 895 车位比: 1:1.12
售楼地址: 郑州市管城区中州大道紫辰路交会处南500米
项目简介

项目概括:

作为中原首个以“融创”品牌命名的城市著作,融创城总占地约1086亩,构建约150万方恢弘大城,规划建面约10万方城市级商业、占地约5万方康养中心、15年一站式教育配套,创造生活、工作、资源多维度集合,焕新管南封面生活,满足全龄生活。

楼盘优点:

l 千亩大盘,全龄生活主场

项目总占地约1046亩,集住宅、商业、教育、文体、康养等业态于一体的一生之城。

l 管南商都,繁华核心都会

融创城择址管南商都新区核心,为东南发展桥头堡、未来核芯生态宜居地。随着南四环郑新快速路互通立交、 “三大核心板块”——商代王朝遗址板块、金岱科创板块、小李庄火车站板块建设全面提速,管南迎来一系列城市发展利好。未来,项目所处区域将迎来重大发展机遇,激活管南发展势头,撬动片区崛起。

l 中州大道,汇聚优势资源

融创城落位于城市发展中轴之上,集萃一城中轴资源,共建一座繁华大城。项目定鼎中州大道,与南三环、机场高速、紫辰路等城市主脉交汇,通达新老城区,快速畅达高铁站、CBD,接轨城市各个角落,打造大城交通网络新枢纽。

l 三河五园,悦揽生态美境

融创城周边三河五园环绕,临近十八里河、七里河、南水北调运河,三河汇聚;滨河公园、体育公园(建设中)、景观公园(规划中)、活力公园(规划中)、文化公园(规划中),五大公园环绕。居于核心都会,既处万象繁华,亦享自然鲜氧。

l 全龄教育,十五年一站式教育

项目规划从幼儿园、小学、初中、高中的十五年一站式教育,已签约管城区外国语小学明珠路校区,护航孩子成长。

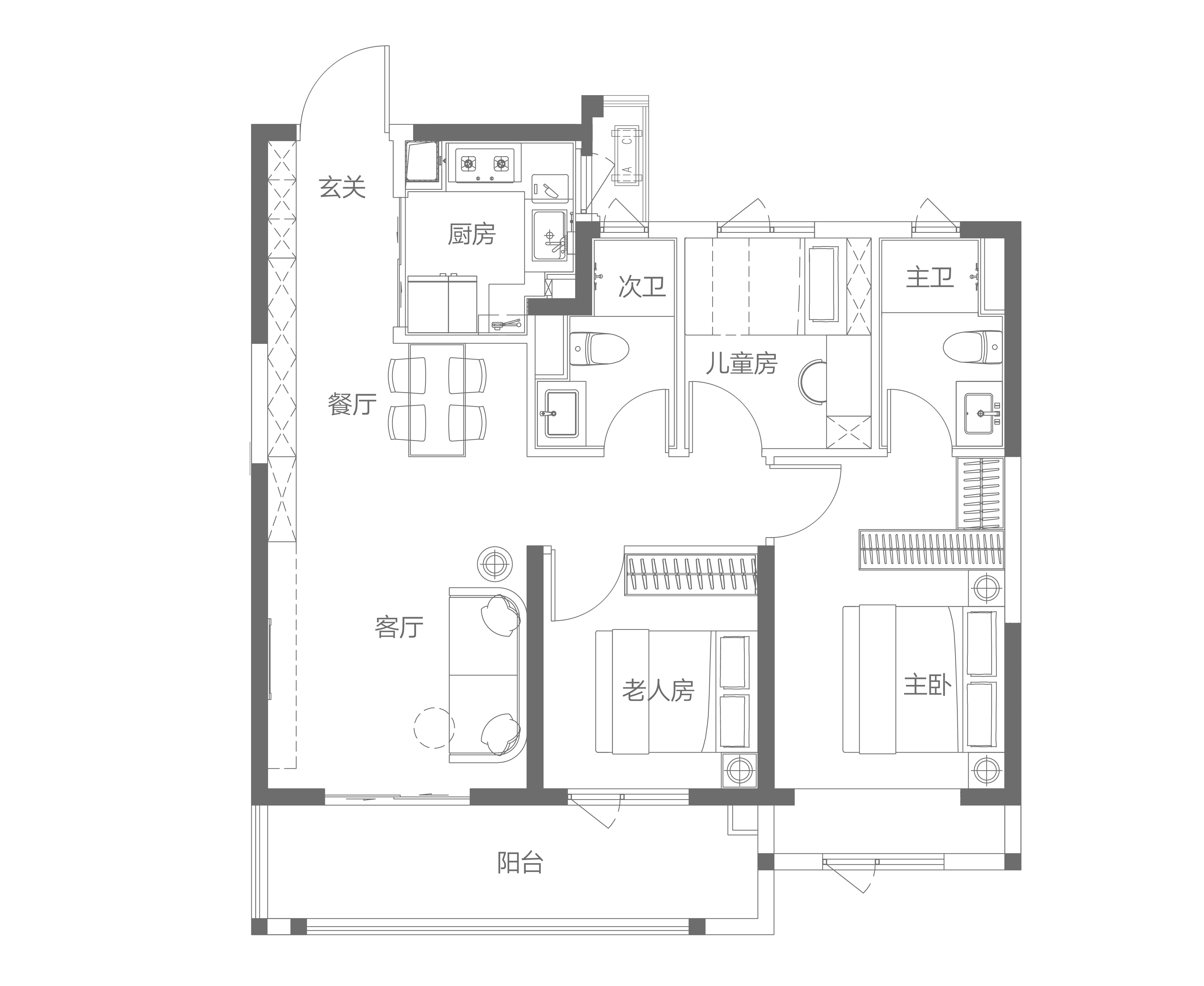
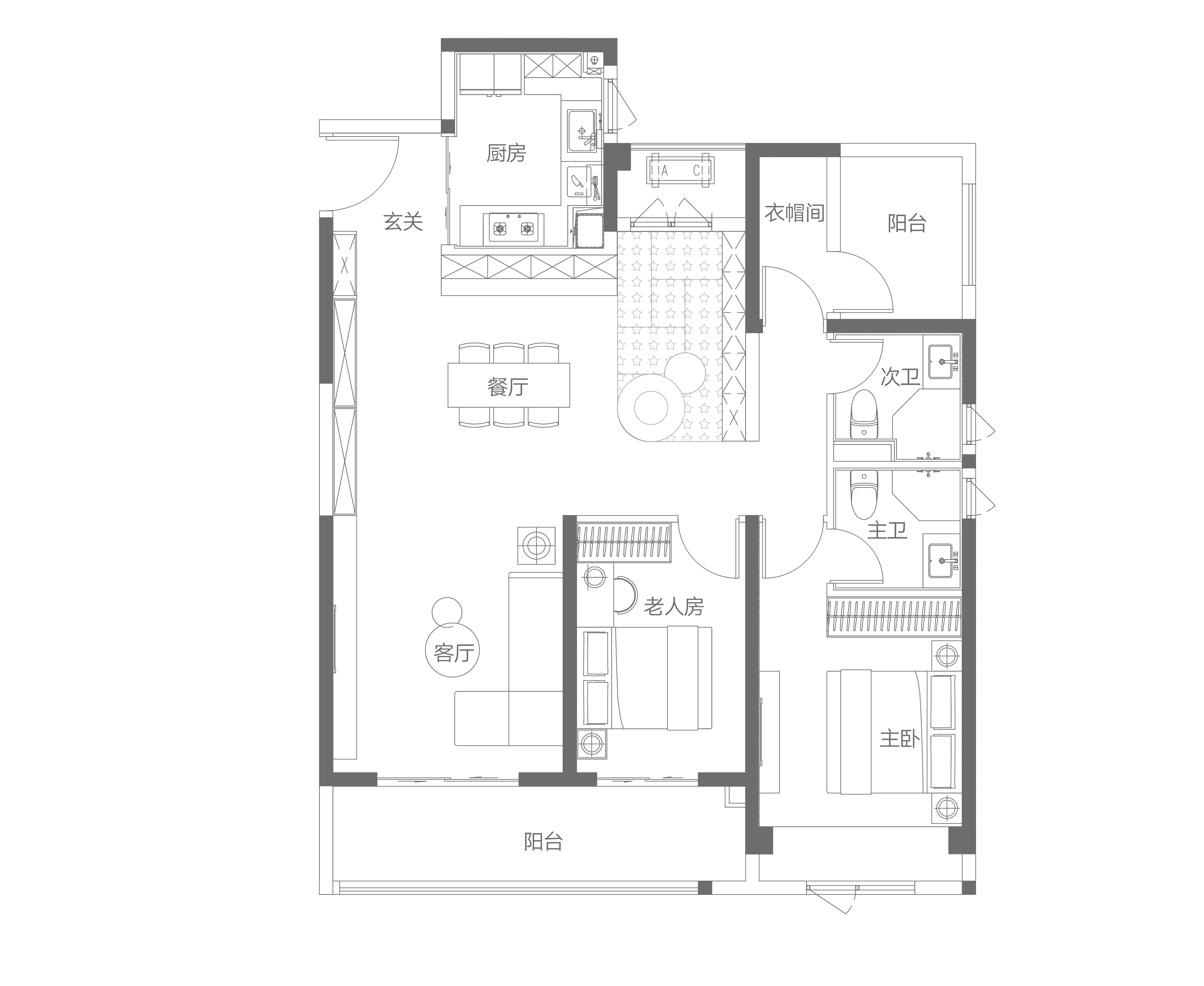
户型图
项目配套
教育:项目规划4所幼儿园 ;中小学:港湾路小学、十八里河小学、管城二中、郑州市第六十三中学;
医疗:郑州市第一人民医院管城分院、郑州市第十人民医院、郑州市第六人民医院;
内部配套:幼儿园、小学、医疗服务中心、商业街、运动场地、老年文化中心、老年人照料中心
周边配套
西吴河公园;郑新公园;金沙湖;七彩公园
交通配套
公交:S121路;89路;129路;165路;292路;Y16路
地铁:2号线、4号线(在建)
最新动向

【融创城· 观河著 】 6期新品全新迭代升级

建面约98-142㎡瞰景高层;

建面约143㎡河畔洋房;

河畔洋房,难得跑道阳台

建筑面积约143㎡河畔洋房,全明方正,南北通透,三开间朝南,实现超大采光;客厅与起居室科学设计,家人相聚、待人接客自得其乐;跑道级阳台设计,客厅南侧、西侧均可采光,约270°IMAX级观景视野;主卧套房设计,规划观景飘窗,让生活起居充满阳光,尊享独立明卫,起居私密性增强。

瞰景高层,难得三开间朝南

6期新品打造建筑面积约98-139㎡瞰景高层,户户三开间朝南,最大限度地升级南向面宽尺度,采光通风俱佳,让阳光满盈入室;南向宽幕阳台,约270度观景视野,将生活延展入自然;餐、厨、客厅、阳台一体化设计,流畅动线,打造全家生活主场。

河南一百度

中国·河南·郑州国家经济技术开发区第五大街经北三路

电话:0371-86088516 (广告)

联系信箱:news100@henan100.com

邮编:450016